อาคารพาณิชย์ 23 ตร.วา นิชชารมณ์ ศรีมหาโพธิ-ปราจีนบุรี ศรีมหาโพธิ ปราจีนบุรี 3.8M
อัพเดทล่าสุด :
-
เลขที่ประกาศ :
5856643
เข้าชม :
ศรีมหาโพธิ ปราจีนบุรี -
ข้อมูลประกาศ
📌 ข้อมูลทรัพย์
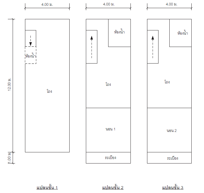
* อาคารพาณิชย์
* ชื่อโครงการ : นิชชารมณ์ ศรีมหาโพธิ-ปราจีนบุรี
* ขนาดพื้นที่ : 23 ตร.วา / 152 ตร.ม.
* Location : โครงการ นิชชารมณ์ : 104/37 หมู่ 9 ถ.ศรีมโหสถ-ศรีมหาโพธิ ต.ศรีมหาโพธิ อ.ศรีมหาโพธิ จ.ปราจีนบุรี
* ราคา : 3,800,000 บาท *สามารถต่อรองราคาได้
📞 สอบถามได้ที่
* Line : @zimple_asset
* Call : 02-026-6941
"Zimple Asset ยินดีให้คำปรึกษา และช่วยเหลือขั้นตอนการซื้อนะคะ 😊"
รายละเอียด
- 3,800,000
- 1 ชั้น
- 2 ห้องนอน
- 3 ห้องน้ำ
- 23 ตร.ว.
- 152 ตร.ม.
สิ่งอำนวยความสะดวกในบ้าน
ประกาศขายในโครงการใกล้เคียง
อาคารพาณิชย์ 54.5 ตร.วา วังทองแลนด์ ศรีมหาโพธิ-ปราจีนบุรี ศรีมหาโพธิ ปราจีนบุรี 1.7M54.5 ตร.วา1 ชั้น฿1,660,000UPDATE !
ที่ตั้ง & สถานที่ใกล้เคียง
รถไฟฟ้า
มีอาคารพาณิชย์ให้เช่า 0 ประกาศ
อาคารพาณิชย์ ศรีมหาโพธิ ปราจีนบุรีมีอาคารพาณิชย์ 19 ประกาศ
ถ้ายังไม่เจอ อาคารพาณิชย์ ที่ใช่สำหรับคุณ?
ให้นายหน้ามืออาชีพช่วยค้นหาให้ฟรี


ประกาศขายอาคารพาณิชย์ในโครงการอื่นๆ ใกล้เคียง
ประกาศเช่าอาคารพาณิชย์ในโครงการอื่นๆ ใกล้เคียง
ไม่มีรายการประกาศ






