🌿 **VS0009 | ขายโรงงานพื้นที่สีม่วง เขตอุตสาหกรรม “นำไกร – ลาดกระบัง”**
อัพเดทล่าสุด :
-
เลขที่ประกาศ :
5872089
เข้าชม :
ลาดกระบัง กรุงเทพมหานคร -
ข้อมูลประกาศ
🌿 **VS0009 | ขายโรงงานพื้นที่สีม่วง เขตอุตสาหกรรม “นำไกร – ลาดกระบัง”**
💰 **ราคาขาย: 119,000,000 บาท**
📐 **ที่ดิน 4 ไร่ 90 ตร.วา | พื้นที่ใช้สอยรวม 6,700 ตร.ม.**
🏭 โรงงานพร้อมใช้งาน เหมาะสำหรับการผลิต โลจิสติกส์ หรือคลังสินค้า
ทำเลอุตสาหกรรมศักยภาพ ใกล้สนามบินและโครงข่ายขนส่งหลัก เชื่อมต่อการส่งออกได้สะดวก เหมาะสำหรับธุรกิจที่ต้องการฐานการผลิตใกล้กรุงเทพ
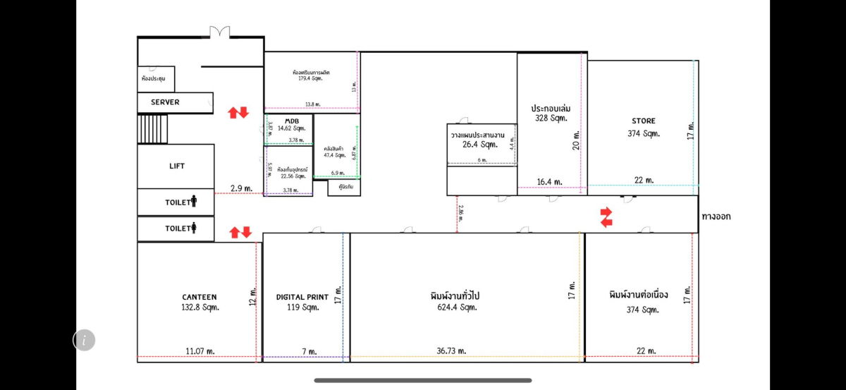
🏭 **รายละเอียดทรัพย์**
• อาคารสำนักงาน **3 ชั้น** พื้นที่ประมาณ **1,320 ตร.ม.**
• อาคารโรงงาน / คลังสินค้า
• พื้นที่ไลน์การผลิต **3,080 ตร.ม.**
• หม้อแปลงไฟฟ้า **800 KVA**
• ระบบไฟฟ้า **3 เฟส**
• พื้นที่ **สีม่วง (อุตสาหกรรมเต็มรูปแบบ)**
• มี **ใบอนุญาตโรงงาน (ร.ง.)** พร้อมดำเนินกิจการทันที
🚚 **ทำเลโลจิสติกส์สำคัญ**
ใกล้ศูนย์กระจายสินค้า สนามบิน และนิคมอุตสาหกรรมหลัก
📍 ระยะทางโดยประมาณ
• สนามบินสุวรรณภูมิ ~12 กม.
• นิคมอุตสาหกรรมลาดกระบัง ~17 กม.
• อมตะนคร ~52 กม.
• ท่าเรือคลองเตย ~43 กม.
• ท่าเรือแหลมฉบัง ~75 กม.
💼 **คอมมิชชันเอเจนท์ 3%**
✨ มีโบนัสพิเศษสำหรับดีลที่ปิดในราคาพรีเมียม
**รหัสทรัพย์ : VS0009**
สอบถามข้อมูลเพิ่มเติม
📞 061-2390292 , 092-7997954
LINE Official : @875vyqbm
[https://lin.ee/4WqC2Um](https://lin.ee/4WqC2Um)
WeChat : PP_VIRAYA01032026
WeChat : VIRAYA2026
#ขายโรงงาน #โรงงานลาดกระบัง #โรงงานพื้นที่สีม่วง
#โรงงานใกล้สนามบิน #โรงงานพร้อมใช้
#นิคมลาดกระบัง #โรงงานกรุงเทพตะวันออก
#ใกล้AirportRailLinkลาดกระบัง #ใกล้สุวรรณภูมิ
รายละเอียด
- 119,000,000
- 90 ตร.ว.
- 6760 ตร.ม.

ประกาศขายในโครงการใกล้เคียง

🏭 ขายโรงงานอุตสาหกรรม ทำเลศักยภาพ ลาดกระบัง (พื้นที่สีม่วง) ✨ใกล้เส้นทางหลัก เชื่อมทุกโซนอุตสาหกรร6700m21690 ตร.วา฿119,000,000
ที่ตั้ง & สถานที่ใกล้เคียง
รถไฟฟ้า
10.6 กม.
มีกิจการ อพาร์ทเม้นท์/โรงแรมให้เช่า 83 ประกาศ
กิจการ อพาร์ทเม้นท์/โรงแรม สนามบินสุวรรณภูมิมีกิจการ อพาร์ทเม้นท์/โรงแรม 22 ประกาศ
4.2 กม.
10.6 กม.
ถ้ายังไม่เจอ โกดัง / โรงงาน ที่ใช่สำหรับคุณ?
ให้นายหน้ามืออาชีพช่วยค้นหาให้ฟรี


ประกาศขายโกดัง/โรงงานในโครงการอื่นๆ ใกล้เคียง
ประกาศเช่าโกดัง/โรงงานในโครงการอื่นๆ ใกล้เคียง





























